Inwestycje w realizacji
O nas
Inwestycje
Zrealizowane
Małe Stabłowice
Widawskie Zacisze
Villa Diamante
Słoneczne Groblice - Etap 2
Słoneczne Groblice - Etap 1
Słoneczne Groblice - Szeregi
ZIelone Iwiny
Willa Przy Lipowej
Waniliowe Zacisze
B1P1
B1P2
B1PARTER
B2PARTER
B2P1
B2P2
lista-kondygnacji
Lista lokali
S6M2
W realizacji
Osiedle Różane
Lista lokali
A2
B2
C1
C2
D1
D2
A1
CM1
Wrocławska 18
Lista wszystkich lokali
Centrum Wojkowice
Budynek A | Poziom 0
Budynek A | Poziom 1
Budynek A | Poziom 2
Budynek B | Poziom 0
Budynek B | Poziom 1
Budynek B | Poziom 2
Lista lokali
A0L1
A0L2
A1L3
A1L4
A1L5
A1L6
A2L7
A2L8
A2L9
A2L10
B0L1
B0L2
B0L3
B0L4
B1L5
B1L6
B1L7
B1L8
B2L9
B2L10
B2L11
B2L12
Osiedle Różane Etap 2
Lista lokali
CM1
Dom w Arkadiach
Aktualności
Kontakt
+48 666 350 646
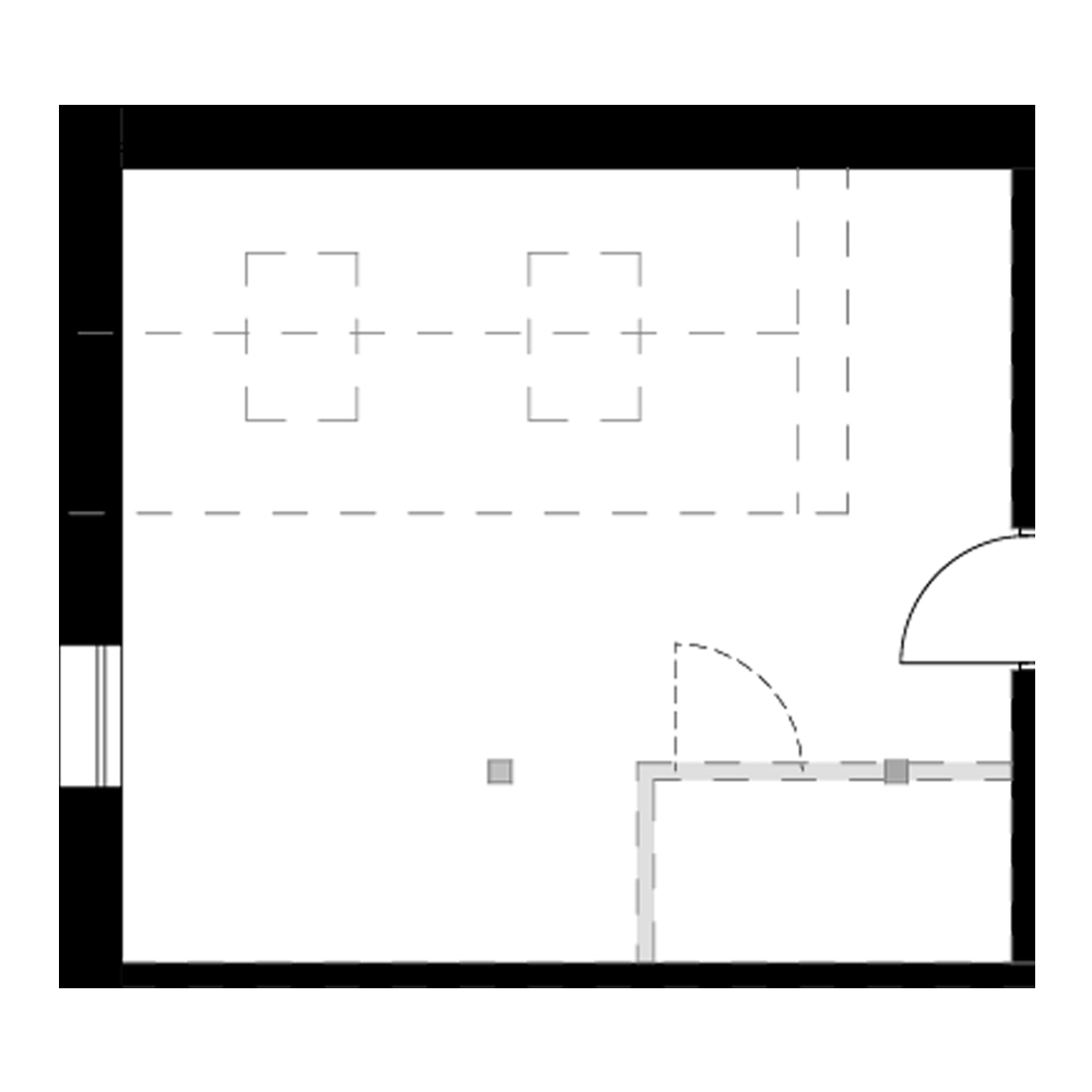
Szczegoły lokalu: A2L7
Rzut piętra
Zapytaj o lokal
Cena wynajmu [netto]:
3 005 zł (85 zł / m2)
Cena sprzedaży [netto]:
353 500 zł (10 000 zł / m2)
Powierzchnia [m2]:
35,35
Łazienka:
Tak
Budynek:
A
Piętro:
2
Status:
Dostępny
Lista wszystkich lokali
Na spełnienie marzeń
nigdy nie jest za późno!
Umów spotkanie